Dokumentacja budowlana jest przygotowywana dla następujących krajów:

Projekt domu jednorodzinnego o pow. 128 m²: Parterowy, 4 Sypialnie, 2 Łazienki (>2.5 m2)

Projekt
10622R
Gotowe
Bez podpisu i bez pieczęci
CAD None
Kluczowe parametry
128
Pow. użytkowa m²
2 + 0
Łazienki + WC
4 + 0
Sypialnie + Gabinet
1
Samochody
Projekt architektoniczno-budowlany zawiera

opis techniczny

rzuty wszystkich kondygnacji

rzut więźby dachowej

rzut dachu

przekroje

elewacje

Projekt techniczny zawiera

projekt konstrukcji

projekt instalacji sanitarnych

projekt instalacji elektrycznej

projekt instalacji wentylacji mechanicznej

Do projektu dodajemy bezpłatnie

teczka do przechowywania dokumentacji projektowej

dziennik budowy

tablicę informacyjną na budowę - po otrzymaniu projektu domu i wypełnieniu ankiety

zgodę na wprowadzenie zmian do projektu

dokumentację projektową w plikach pdf

Chcesz wprowadzić zmiany?

Ten projekt domu można dostosować do stylu życia Twojej rodziny i warunków Twojej działki.

Wideo
Rzuty
Parter
10622R - Parter
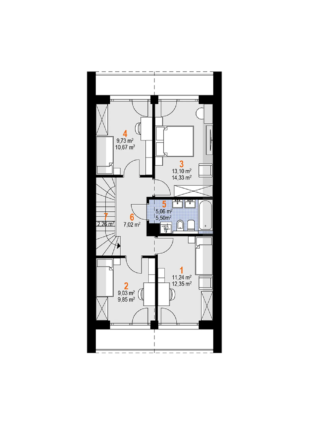
1. piętro
10622R - 1. piętro
Pełna specyfikacja
Powierzchnia
Pow. użytkowa: 128 m²
Pow. zabudowy: 89 m²
Pow. netto domu: 110 m²
Pow. kotłowni: 0 m²
Pow. piwnic: 0 m²
Pow. podłóg: 0 m²
Pow. całkowita: 189 m²
Wymiary
Głębokość 14.60 m
Szerokość 7.00 m
Wysokość 8.71 m
Materiały
Szkieletowy
Pustak ceramiczny
Beton komórkowy
Elewacje
Blacha na rąbek
Pomieszczenia
Łazienki: 2
Wc: 0
Sypialnie: 4
Wiatrołap
Schowek
Fundament
Płyta
Ławy
Styl architektoniczny
Nowoczesna Stodoła
Nowoczesny
European
Modernistyczny
Cechy zewnętrzne
Balkon
Taras
Okna panoramiczne
Duże okna
Okna od podłogi do sufitu
Cechy wewnętrzne
Główna sypialnia na piętrze
Rozproszone sypialnie
Otwarta kuchnia
Kuchnia i jadalnia
Kącik jadalniany
Wyspa kuchenna
Garaż
9: 18 m²
Samochody: 1
W bryle
Wjazd od frontu
Dach
Powierzchnia dachu: 142.00m²
Dwuspadowy
Kalenica prostopadła do ulicy
Kąt dachu: 45º
Architekt
Archeton Archeton Biuro architektoniczne country with code pl
country with code pl
Województwo Małopolskie, Kraków, ul. Cystersów 9 31-553
Pakiet projektu

Komplet Projektu
zł4190
Fundament
zł0
zł1200
Ściany zewnętrzne
zł500
zł0
zł500
Dodatki
zł500
zł550
zł350
Suma częściowa