Dokumentacja budowlana jest przygotowywana dla następujących krajów:

Projekt domu jednorodzinnego o pow. 103 m²: Parterowy, 3 Sypialnie, 2 Łazienki

Projekt
52833R
Gotowe
Bez podpisu i bez pieczęci
CAD None
Kluczowe parametry
103
Pow. użytkowa m²
2 + 0
Łazienki + WC
3 + 1
Sypialnie + Gabinet
2
Samochody (Wiata)
Projekt architektoniczno-budowlany zawiera

opis techniczny

rzuty wszystkich kondygnacji

rzut więźby dachowej

rzut dachu

przekroje

elewacje

Projekt techniczny zawiera

projekt konstrukcji

projekt instalacji sanitarnych

projekt instalacji elektrycznej

projekt instalacji wentylacji mechanicznej

Do projektu dodajemy bezpłatnie

teczka do przechowywania dokumentacji projektowej

dziennik budowy

tablicę informacyjną na budowę - po otrzymaniu projektu domu i wypełnieniu ankiety

zgodę na wprowadzenie zmian do projektu

dokumentację projektową w plikach pdf

Chcesz wprowadzić zmiany?

Ten projekt domu można dostosować do stylu życia Twojej rodziny i warunków Twojej działki.

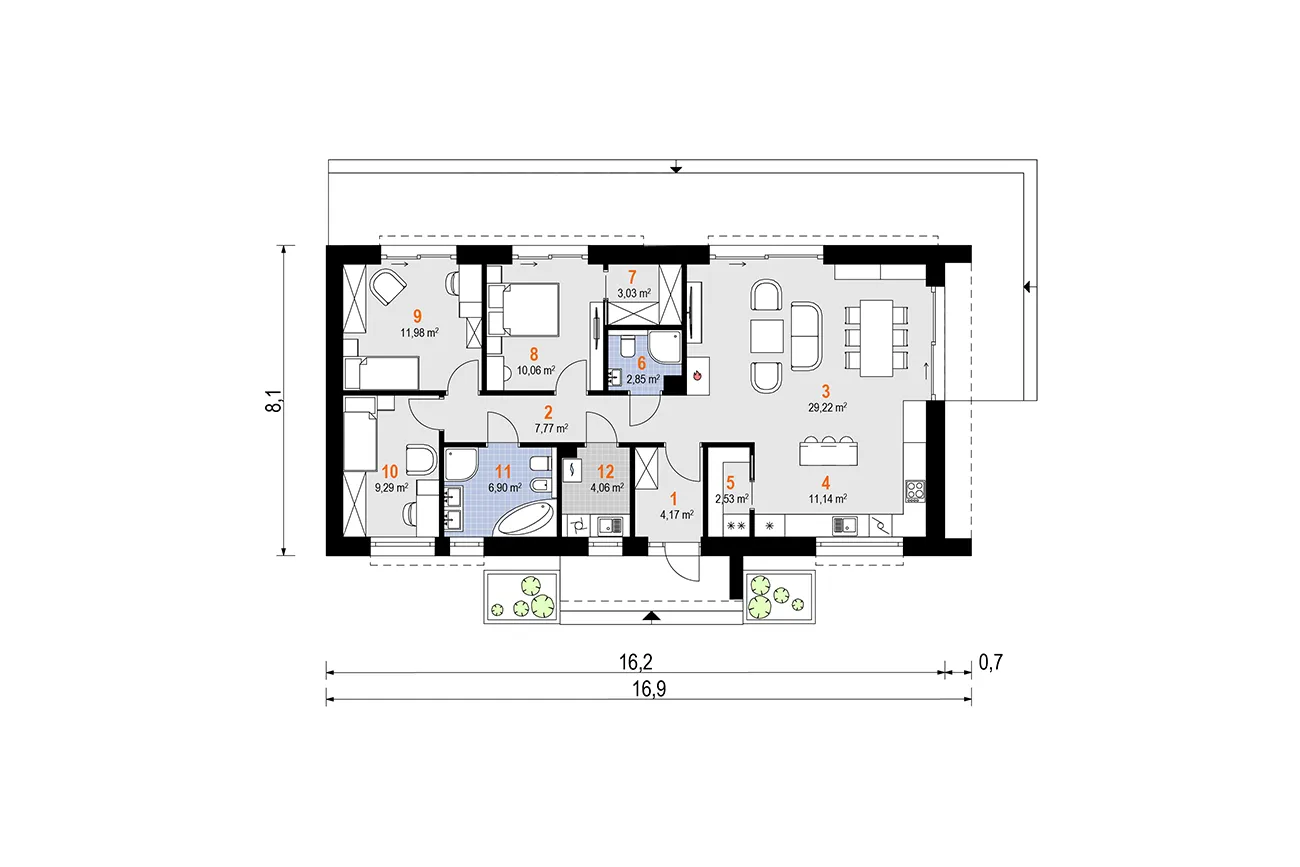
Rzuty
Parter
52833R - Parter
Pełna specyfikacja
Powierzchnia
Pow. użytkowa: 103 m²
Pow. zabudowy: 133 m²
Pow. netto domu: 99 m²
Pow. kotłowni: 4 m²
Pow. piwnic: 0 m²
Pow. podłóg: 0 m²
Pow. całkowita: 133 m²
Wymiary
Głębokość 8.10 m
Szerokość 16.90 m
Wysokość 5.91 m
Materiały
Pustak ceramiczny
Beton komórkowy
Elewacje
Blacha na rąbek
Pomieszczenia
Łazienki: 2
Wc: 0
Sypialnie: 3
Kotłownia
Wiatrołap
Gabinet
Garderoba w sypialni
Fundament
Płyta
Ławy
Styl architektoniczny
Nowoczesna Stodoła
Nowoczesny
European
Modernistyczny
Cechy zewnętrzne
Taras
Duże okna
Okna od podłogi do sufitu
Cechy wewnętrzne
Kominek w salonie
Główna sypialnia na parterze
Skupione sypialnie
Otwarta kuchnia
Duży salon (>25 m²)
Kuchnia i jadalnia
Spiżarnia
Kącik jadalniany
Wyspa kuchenna
Garaż
9: 0 m²
Samochody: 2
Doklejony
Wiata
Dach
Powierzchnia dachu: 152.00m²
Dwuspadowy
Kalenica równoległa do ulicy
Kąt dachu: 30º
Architekt
Archeton Archeton Biuro architektoniczne country with code pl
country with code pl
Województwo Małopolskie, Kraków, ul. Cystersów 9 31-553
Pakiet projektu

Komplet Projektu
zł3542
Fundament
zł0
zł1200
Ściany zewnętrzne
zł500
zł0
zł500
Dodatki
zł500
zł550
zł350
Suma częściowa