Dokumentacja budowlana jest przygotowywana dla następujących krajów:

Projekt domu jednorodzinnego o pow. 172 m²: Parterowy z poddaszem użytkowym, 3 Sypialnie, Gabinet, 2 Łazienki, Otwarta kuchnia, Garaż

Projekt
22635R
Gotowe
Podpisane i opieczętowane
KC Dostępny
Kluczowe parametry
172
Pow. użytkowa m²
2 + 0
Łazienki + WC
3 + 1
Sypialnie + Gabinet
1
Samochody
111

222

Chcesz wprowadzić zmiany?

Ten projekt domu można dostosować do stylu życia Twojej rodziny i warunków Twojej działki.

Architekt tego projektu nie pochodzi z twojego kraju.

Jeśli chcesz zmodyfikować ten projekt domu, masz dwie opcje:

1. Modyfikacje przez oryginalnego architekta: Współpracuj bezpośrednio z oryginalnym architektem, aby kupić zmodyfikowaną koncepcję cyfrową, a następnie przekaż ją swojemu lokalnemu architektowi, aby zamówić dokumentację budowlaną.

2. Modyfikacje przez lokalnego architekta: Kup koncepcję cyfrową w oryginalnej formie, współpracuj z lokalnym architektem nad zmianami, a następnie przejdź do zamówienia dokumentacji budowlanej.

Rzuty
Parter
22635R - Parter
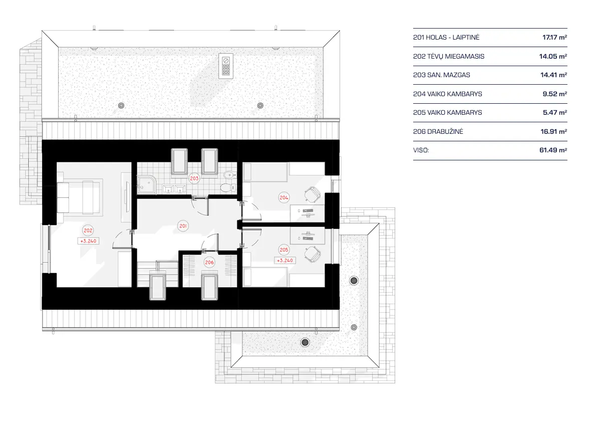
1. piętro
22635R - 1. piętro
Pełna specyfikacja
Powierzchnia
Pow. zabudowy: 193 m²
Pow. netto domu: 143 m²
Piwnica: 0 m²
Kotłownia: 7 m²
Pow. użytkowa: 172 m²
Wymiary
Głębokość 14.95 m
Szerokość 14.87 m
Wysokość 8.50 m
Materiały
Szkieletowy
Pustak ceramiczny
Beton komórkowy
Bloczek silikatowy
Elewacje
Drewno
Tynk
Blacha na rąbek
Pomieszczenia
Łazienki : 2
Wc : 0
Sypialnie : 3
Kotłownia
Wiatrołap
Gabinet
Schowek
Fundament
Pale
Płyta
Z bloczków
Ławy
Styl architektoniczny
Nowoczesna Stodoła
Nowoczesny
European
Modernistyczny
Skandynawski
Cechy zewnętrzne
Zadaszona weranda z tyłu
Duże okna
Okna od podłogi do sufitu
Cechy wewnętrzne
Główna sypialnia na piętrze
Rozproszone sypialnie
Otwarta kuchnia
Kuchnia i jadalnia
Kącik jadalniany
Wyspa kuchenna
Garaż
9: 21 m²
Samochody: 1
Doklejony
Wjazd od frontu
Dach
Powierzchnia dachu: 0.00m²
Dwuspadowy
Płaski
Świetlik
Kalenica prostopadła do ulicy
Kąt dachu : 40º (±2º)
Architekt
NP5 NP5 Firma projektowo-budowlana country with code lt Lithuania
country with code lt Lithuania
Šiauliai City Municipality, Šiauliai, Kreivoji g. 7
Pakiet projektu

Projekt domu może nie być zgodny z normami budowlanymi obowiązującymi w Twoim kraju.

Aby upewnić się, że projekt domu jest zgodny z normami budowlanymi obowiązującymi w Twoim kraju, należy zakupić koncepcję cyfrową od autora projektu i wybrać poniżej lokalnego architekta do przygotowania dokumentacji budowlanej.

Koncepcja cyfrowa plan_plan_cad_owner_country_desc
5431 zł
Suma częściowa
Lokalni architekci
Oferty lokalnych architektów gotowych do opracowania dokumentacji budowlanej na podstawie koncepcji cyfrowej.
 

 

 

Polska, Województwo Mazowieckie, Warsaw
7500
Polska, Województwo Dolnośląskie, Wrocław
34332
Polska, Województwo Małopolskie, Kraków
30898.8
Polska, Łódź Voivodeship, Łódź
48064.8