Dokumentacja budowlana jest przygotowywana dla następujących krajów:

Projekt domu jednorodzinnego o pow. 670 m²: Piętrowy, 5 Sypialnie, Gabinet, 5 Łazienki, Otwarta kuchnia, Garaż

Projekt
27716R
Gotowe
Podpisane i opieczętowane
KC Dostępny
Kluczowe parametry
670
Pow. użytkowa m²
5 + 0
Łazienki + WC
5 + 1
Sypialnie + Gabinet
3
Samochody
Chcesz wprowadzić zmiany?

Ten projekt domu można dostosować do stylu życia Twojej rodziny i warunków Twojej działki.

Architekt tego projektu nie pochodzi z twojego kraju.

Jeśli chcesz zmodyfikować ten projekt domu, masz dwie opcje:

1. Modyfikacje przez oryginalnego architekta: Współpracuj bezpośrednio z oryginalnym architektem, aby kupić zmodyfikowaną koncepcję cyfrową, a następnie przekaż ją swojemu lokalnemu architektowi, aby zamówić dokumentację budowlaną.

2. Modyfikacje przez lokalnego architekta: Kup koncepcję cyfrową w oryginalnej formie, współpracuj z lokalnym architektem nad zmianami, a następnie przejdź do zamówienia dokumentacji budowlanej.

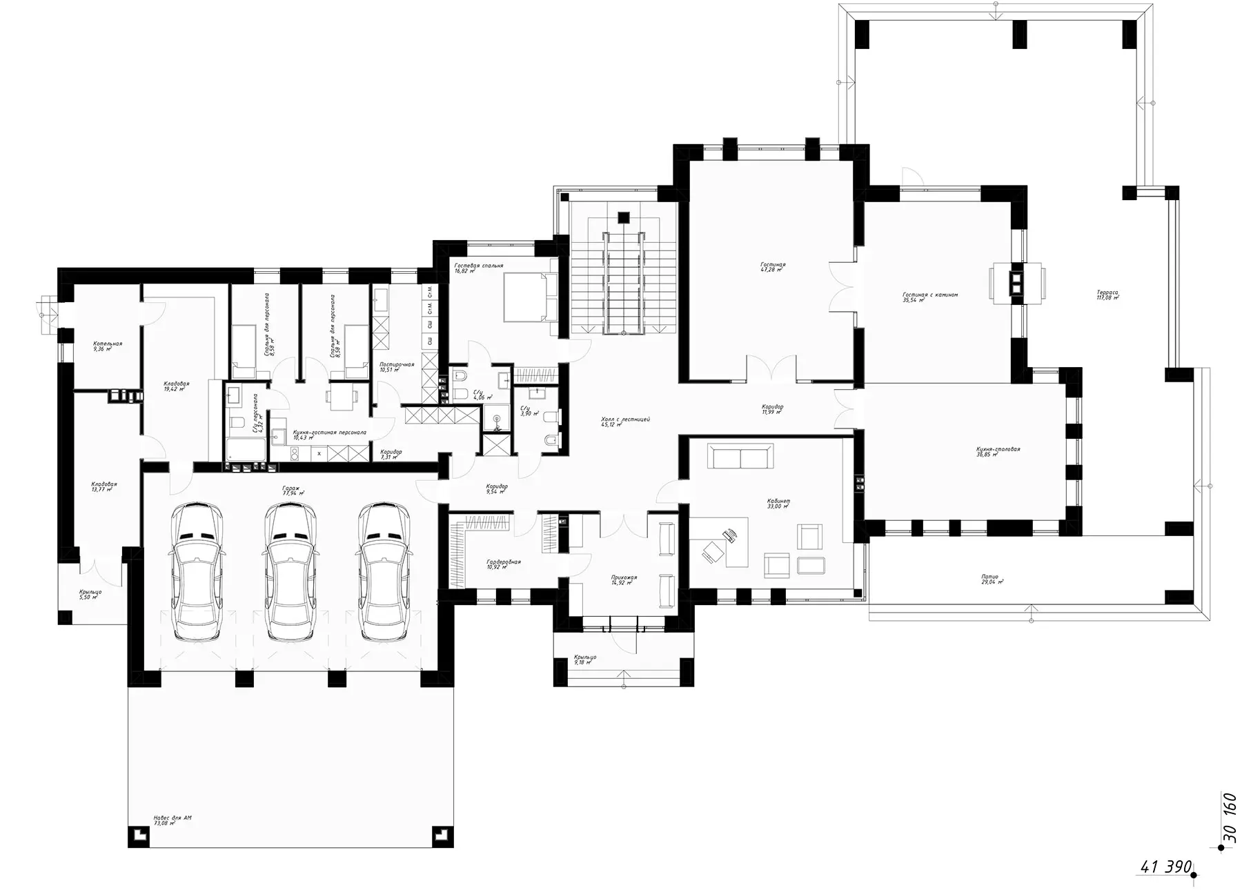
Rzuty
Parter
27716R - Parter
1. piętro
27716R - 1. piętro
Pełna specyfikacja
Powierzchnia
Pow. netto domu: 583 m²
Pokój opcjonalny: 0 m²
Piwnica: 0 m²
Kotłownia: 9 m²
Pow. użytkowa: 670 m²
Wymiary
Głębokość 30.16 m
Szerokość 41.39 m
Materiały
Pustak ceramiczny
Beton komórkowy
Cegła
Bloczek silikatowy
Elewacje
Cegła
Drewno
Pomieszczenia
Łazienki : 5
Wc : 0
Sypialnie : 5
Kotłownia
Silownia
Pralnia
Wiatrołap
Gabinet
Schowek
Pokój gościnny
Garderoba w sypialni
Fundament
Płyta
Ławy
Styl architektoniczny
Luksusowy
Mid Century
Prairie
Tradycyjny
Cechy zewnętrzne
Balkon
Kominek na tarasie
Zadaszona weranda z tyłu
Patio
Portyk
Zadaszona weranda z boku
Duże okna
Kominek dwustronny
Okna od podłogi do sufitu
Cechy wewnętrzne
Pralnia na parterze
Kominek w salonie
Główna sypialnia na piętrze
2 Główne sypialnie
Strefa przy kominku
Rozproszone sypialnie
Otwarta kuchnia
Duży salon (>25 m²)
Duża kuchnia (>12 m²)
Kuchnia i jadalnia
Lada barowa
Kącik jadalniany
Wyspa kuchenna
Garaż
9: 78 m²
Samochody: 3
Doklejony
Wjazd od frontu
Dach
Powierzchnia dachu: 0.00m²
Wielospadowy
Architekt
Stanislav Garder Stanislav Garder Architekt
Kazakhstan
Kazakhstan
Almaty, Almaty
Pakiet projektu

Projekt domu może nie być zgodny z normami budowlanymi obowiązującymi w Twoim kraju.

Aby upewnić się, że projekt domu jest zgodny z normami budowlanymi obowiązującymi w Twoim kraju, należy zakupić koncepcję cyfrową od autora projektu i wybrać poniżej lokalnego architekta do przygotowania dokumentacji budowlanej.

Koncepcja cyfrowa plan_plan_cad_owner_country_desc
zł1449.34
Suma częściowa