Dokumentacja budowlana jest przygotowywana dla następujących krajów:

Projekt domu jednorodzinnego o pow. 461 m²: Dwupiętrowy, 6 Sypialnie, Gabinet, 5 Łazienki, Otwarta kuchnia

Projekt
37307R
Gotowe
Podpisane i opieczętowane
KC Dostępny
Kluczowe parametry
461
Pow. użytkowa m²
5 + 0
Łazienki + WC
6 + 1
Sypialnie + Gabinet
0
Samochody
Chcesz wprowadzić zmiany?

Ten projekt domu można dostosować do stylu życia Twojej rodziny i warunków Twojej działki.

Architekt tego projektu nie pochodzi z twojego kraju.

Jeśli chcesz zmodyfikować ten projekt domu, masz dwie opcje:

1. Modyfikacje przez oryginalnego architekta: Współpracuj bezpośrednio z oryginalnym architektem, aby kupić zmodyfikowaną koncepcję cyfrową, a następnie przekaż ją swojemu lokalnemu architektowi, aby zamówić dokumentację budowlaną.

2. Modyfikacje przez lokalnego architekta: Kup koncepcję cyfrową w oryginalnej formie, współpracuj z lokalnym architektem nad zmianami, a następnie przejdź do zamówienia dokumentacji budowlanej.

Rzuty
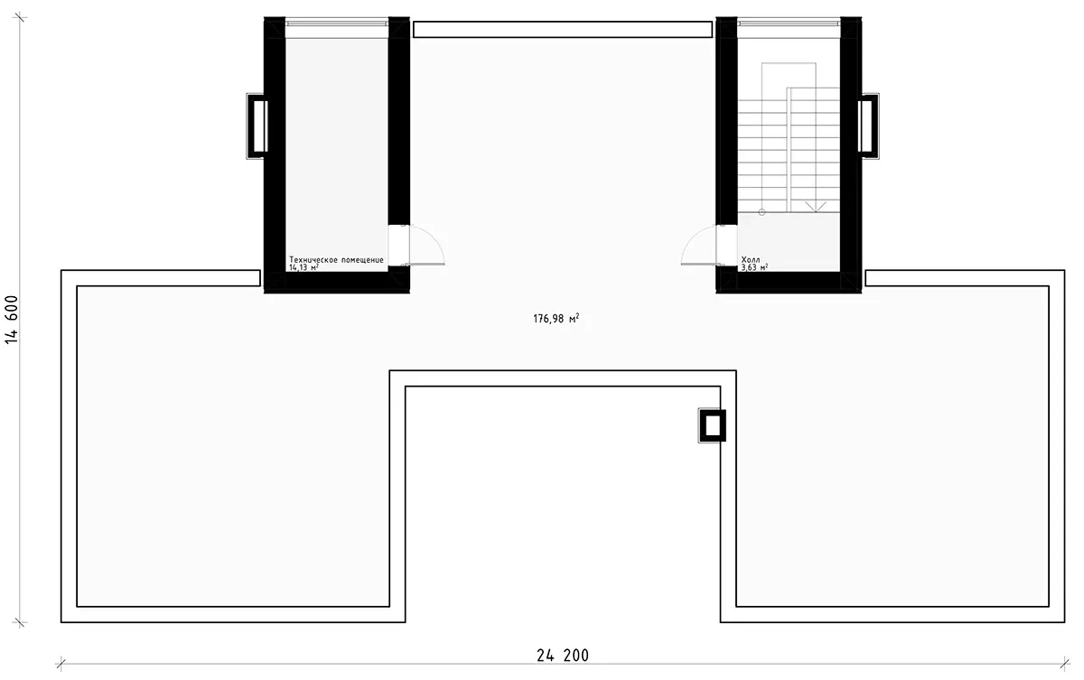
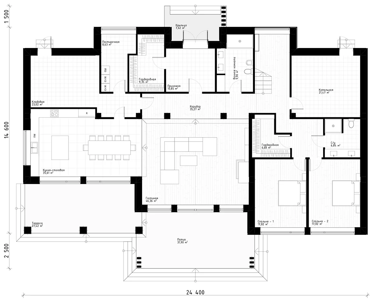
Parter
37307R - Parter
1. piętro
37307R - 1. piętro
2. piętro
37307R - 2. piętro
Pełna specyfikacja
Powierzchnia
Pow. netto domu: 440 m²
Pokój opcjonalny: 0 m²
Piwnica: 0 m²
Kotłownia: 21 m²
Pow. użytkowa: 461 m²
Wymiary
Głębokość 18.60 m
Szerokość 24.40 m
Materiały
Pustak ceramiczny
Beton komórkowy
Cegła
Bloczek silikatowy
Elewacje
Płytki klinkierowe
Drewno
Tynk
Pomieszczenia
Łazienki : 5
Wc : 0
Sypialnie : 6
Kotłownia
Pralnia
Wiatrołap
Gabinet
Schowek
Garderoba w sypialni
Fundament
Płyta
Ławy
Styl architektoniczny
Nowoczesny
High-tech
Modernistyczny
Cechy zewnętrzne
Zadaszona weranda z tyłu
Patio
Okna panoramiczne
Taras na dachu
Duże okna
Okna od podłogi do sufitu
Cechy wewnętrzne
Pralnia na parterze
Kominek w salonie
Główna sypialnia na piętrze
2 Główne sypialnie
Rozproszone sypialnie
Otwarta kuchnia
Duży salon (>25 m²)
Duża kuchnia (>12 m²)
Kuchnia i jadalnia
Spiżarnia
Kącik jadalniany
Wyspa kuchenna
Garaż
9: 0 m²
Samochody: 0
Dach
Powierzchnia dachu: 0.00m²
Płaski
Architekt
Stanislav Garder Stanislav Garder Architekt
Kazakhstan
Kazakhstan
Almaty, Almaty
Pakiet projektu

Projekt domu może nie być zgodny z normami budowlanymi obowiązującymi w Twoim kraju.

Aby upewnić się, że projekt domu jest zgodny z normami budowlanymi obowiązującymi w Twoim kraju, należy zakupić koncepcję cyfrową od autora projektu i wybrać poniżej lokalnego architekta do przygotowania dokumentacji budowlanej.

Koncepcja cyfrowa plan_plan_cad_owner_country_desc
zł1449.34
Suma częściowa