Dokumentacja budowlana jest przygotowywana dla następujących krajów:

Projekt domu jednorodzinnego o pow. 348 m²: Piętrowy, 4 Sypialnie, Gabinet, 3 Łazienki, Otwarta kuchnia, Wiata

Projekt
64022R
Gotowe
Podpisane i opieczętowane
KC Dostępny
Kluczowe parametry
348
Pow. użytkowa m²
3 + 0
Łazienki + WC
4 + 1
Sypialnie + Gabinet
3
Samochody (Wiata)
Chcesz wprowadzić zmiany?

Ten projekt domu można dostosować do stylu życia Twojej rodziny i warunków Twojej działki.

Architekt tego projektu nie pochodzi z twojego kraju.

Jeśli chcesz zmodyfikować ten projekt domu, masz dwie opcje:

1. Modyfikacje przez oryginalnego architekta: Współpracuj bezpośrednio z oryginalnym architektem, aby kupić zmodyfikowaną koncepcję cyfrową, a następnie przekaż ją swojemu lokalnemu architektowi, aby zamówić dokumentację budowlaną.

2. Modyfikacje przez lokalnego architekta: Kup koncepcję cyfrową w oryginalnej formie, współpracuj z lokalnym architektem nad zmianami, a następnie przejdź do zamówienia dokumentacji budowlanej.

Rzuty
Parter
64022R - Parter
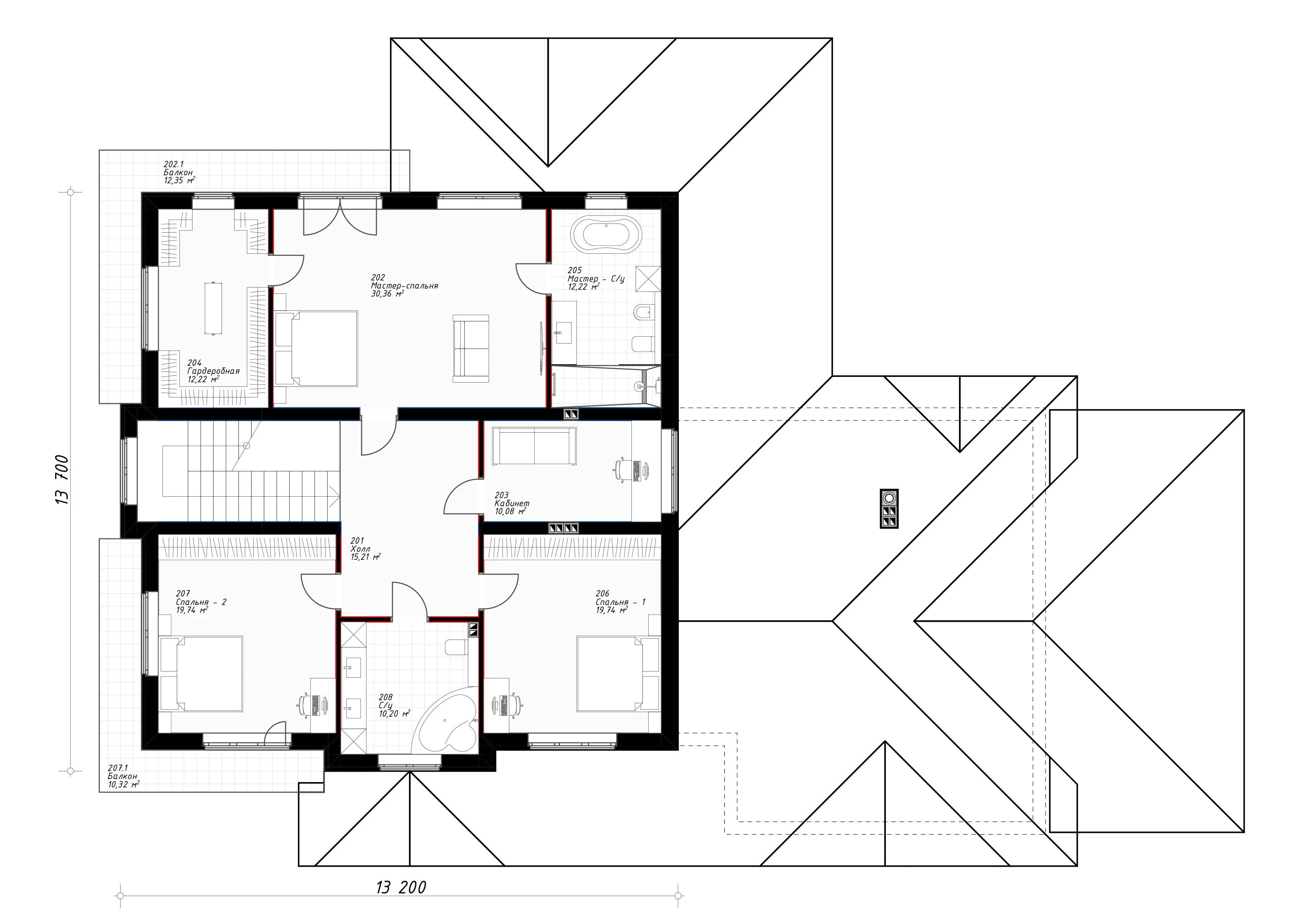
1. piętro
64022R - 1. piętro
Pełna specyfikacja
Powierzchnia
Pow. netto domu: 283 m²
Pokój opcjonalny: 0 m²
Piwnica: 0 m²
Kotłownia: 8 m²
Pow. użytkowa: 348 m²
Wymiary
Głębokość 18.22 m
Szerokość 26.00 m
Materiały
Pustak ceramiczny
Beton komórkowy
Cegła
Bloczek silikatowy
Elewacje
Płytki klinkierowe
Tynk
Pomieszczenia
Łazienki : 3
Wc : 0
Sypialnie : 4
Kotłownia
Wiatrołap
Gabinet
Schowek
Garderoba w sypialni
Fundament
Stopy
Pale
Płyta
Ławy
Styl architektoniczny
Wiejski
Craftsman
European
Cechy zewnętrzne
Balkon
Zadaszona weranda z tyłu
Duże okna
Cechy wewnętrzne
Główna sypialnia na piętrze
Rozproszone sypialnie
Otwarta kuchnia
Duży salon (>25 m²)
Duża kuchnia (>12 m²)
Kuchnia i jadalnia
Spiżarnia
Kącik jadalniany
Wyspa kuchenna
Garaż
9: 56 m²
Samochody: 3
Doklejony
Wiata
Wjazd od frontu
Dach
Powierzchnia dachu: 0.00m²
Wielospadowy
Architekt
Stanislav Garder Stanislav Garder Architekt
Kazakhstan
Kazakhstan
Almaty, Almaty
Pakiet projektu

Projekt domu może nie być zgodny z normami budowlanymi obowiązującymi w Twoim kraju.

Aby upewnić się, że projekt domu jest zgodny z normami budowlanymi obowiązującymi w Twoim kraju, należy zakupić koncepcję cyfrową od autora projektu i wybrać poniżej lokalnego architekta do przygotowania dokumentacji budowlanej.

Koncepcja cyfrowa plan_plan_cad_owner_country_desc
zł1449.34
Suma częściowa