Dokumentacja budowlana jest przygotowywana dla następujących krajów:

Projekt domu jednorodzinnego o pow. 167 m²: Piętrowy, 3 Sypialnie, Gabinet, 2 Łazienki, Otwarta kuchnia, Garaż

Projekt
68159R
Gotowe
Podpisane i opieczętowane
KC Dostępny
Kluczowe parametry
167
Pow. użytkowa m²
1 + 1
Łazienki + WC
3 + 1
Sypialnie + Gabinet
1
Samochody
111

222

Chcesz wprowadzić zmiany?

Ten projekt domu można dostosować do stylu życia Twojej rodziny i warunków Twojej działki.

Architekt tego projektu nie pochodzi z twojego kraju.

Jeśli chcesz zmodyfikować ten projekt domu, masz dwie opcje:

1. Modyfikacje przez oryginalnego architekta: Współpracuj bezpośrednio z oryginalnym architektem, aby kupić zmodyfikowaną koncepcję cyfrową, a następnie przekaż ją swojemu lokalnemu architektowi, aby zamówić dokumentację budowlaną.

2. Modyfikacje przez lokalnego architekta: Kup koncepcję cyfrową w oryginalnej formie, współpracuj z lokalnym architektem nad zmianami, a następnie przejdź do zamówienia dokumentacji budowlanej.

Rzuty
Parter
68159R - Parter
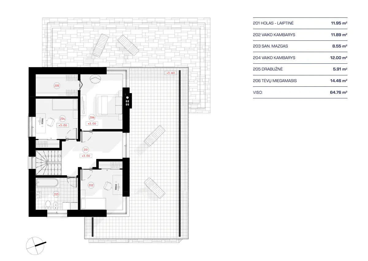
1. piętro
68159R - 1. piętro
Pełna specyfikacja
Powierzchnia
Pow. zabudowy: 159 m²
Pow. netto domu: 131 m²
Piwnica: 0 m²
Kotłownia: 11 m²
Pow. użytkowa: 167 m²
Wymiary
Głębokość 12.45 m
Szerokość 13.40 m
Wysokość 7.51 m
Materiały
Szkieletowy
Pustak ceramiczny
Beton komórkowy
Bloczek silikatowy
Elewacje
Tynk
Pomieszczenia
Łazienki : 1
Wc : 1
Sypialnie : 3
Kotłownia
Wiatrołap
Gabinet
Garderoba w sypialni
Fundament
Pale
Płyta
Z bloczków
Ławy
Styl architektoniczny
Nowoczesny
European
Minimalistyczny
Modernistyczny
Cechy zewnętrzne
Balkon
Taras
Okno narożne
Taras nad garażem
Duże okna
Okna od podłogi do sufitu
Cechy wewnętrzne
Główna sypialnia na piętrze
Skupione sypialnie
Otwarta kuchnia
Pralnia w kotłowni
Kuchnia i jadalnia
Lada barowa
Kącik jadalniany
Garaż
9: 25 m²
Samochody: 1
Doklejony
Wjazd od frontu
Dach
Powierzchnia dachu: 0.00m²
Płaski
Architekt
NP5 NP5 Firma projektowo-budowlana country with code lt Lithuania
country with code lt Lithuania
Šiauliai City Municipality, Šiauliai, Kreivoji g. 7
Pakiet projektu

Projekt domu może nie być zgodny z normami budowlanymi obowiązującymi w Twoim kraju.

Aby upewnić się, że projekt domu jest zgodny z normami budowlanymi obowiązującymi w Twoim kraju, należy zakupić koncepcję cyfrową od autora projektu i wybrać poniżej lokalnego architekta do przygotowania dokumentacji budowlanej.

Koncepcja cyfrowa plan_plan_cad_owner_country_desc
5451 zł
Suma częściowa
Lokalni architekci
Oferty lokalnych architektów gotowych do opracowania dokumentacji budowlanej na podstawie koncepcji cyfrowej.
 

 

 

Polska, Województwo Mazowieckie, Warsaw
7500
Polska, Województwo Dolnośląskie, Wrocław
33466
Polska, Województwo Małopolskie, Kraków
30119.4
Polska, Łódź Voivodeship, Łódź
46852.4