Dokumentacja budowlana jest przygotowywana dla następujących krajów:

Projekt domu jednorodzinnego o pow. 560 m²: Parterowy z poddaszem użytkowym, 3 Sypialnie, 5 Łazienki, Wiata

Projekt
82647R
Gotowe
Podpisane i opieczętowane
KC Dostępny
Kluczowe parametry
560
Pow. użytkowa m²
5 + 0
Łazienki + WC
3 + 0
Sypialnie + Gabinet
2
Samochody (Wiata)
Chcesz wprowadzić zmiany?

Ten projekt domu można dostosować do stylu życia Twojej rodziny i warunków Twojej działki.

Architekt tego projektu nie pochodzi z twojego kraju.

Jeśli chcesz zmodyfikować ten projekt domu, masz dwie opcje:

1. Modyfikacje przez oryginalnego architekta: Współpracuj bezpośrednio z oryginalnym architektem, aby kupić zmodyfikowaną koncepcję cyfrową, a następnie przekaż ją swojemu lokalnemu architektowi, aby zamówić dokumentację budowlaną.

2. Modyfikacje przez lokalnego architekta: Kup koncepcję cyfrową w oryginalnej formie, współpracuj z lokalnym architektem nad zmianami, a następnie przejdź do zamówienia dokumentacji budowlanej.

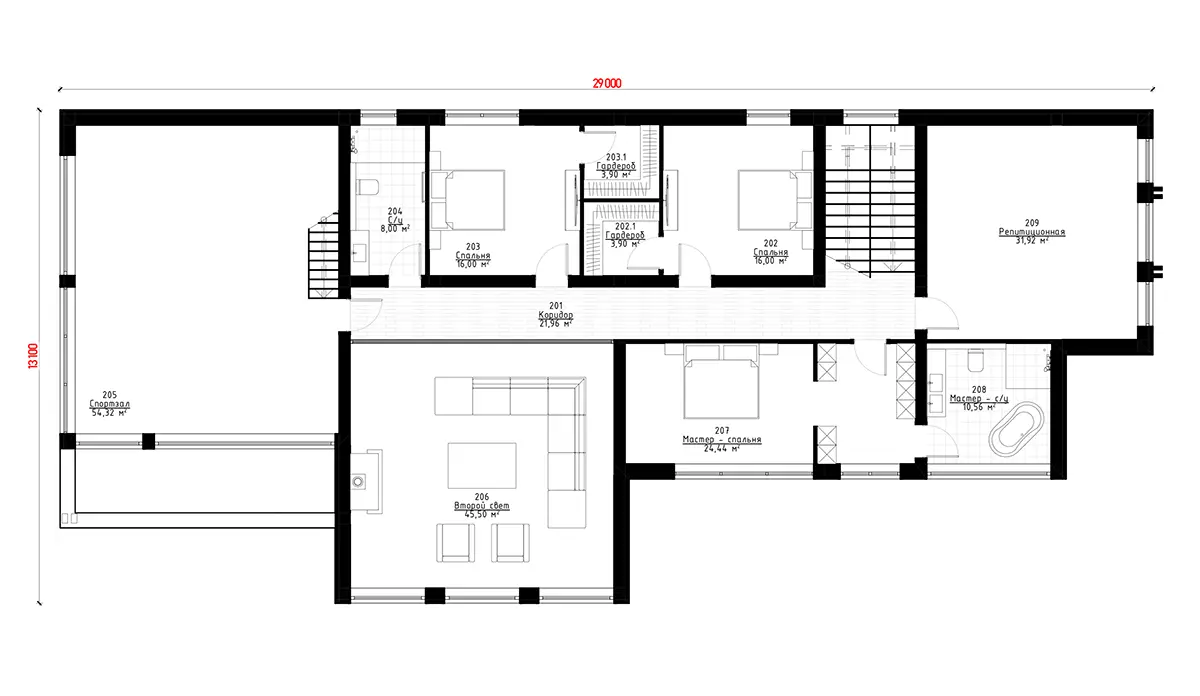
Rzuty
Parter
82647R - Parter
1. piętro
82647R - 1. piętro
Pełna specyfikacja
Powierzchnia
Pow. netto domu: 500 m²
Pokój opcjonalny: 0 m²
Piwnica: 0 m²
Kotłownia: 11 m²
Pow. użytkowa: 560 m²
Wymiary
Głębokość 17.72 m
Szerokość 34.00 m
Materiały
Pustak ceramiczny
Beton komórkowy
Cegła
Bloczek silikatowy
Elewacje
Płytki klinkierowe
Drewno
Pomieszczenia
Łazienki : 5
Wc : 0
Sypialnie : 3
Kotłownia
Silownia
Sala gier
Pralnia
Wiatrołap
Sauna
Basen
Pokój gościnny
Garderoba w sypialni
Fundament
Pale
Płyta
Ławy
Styl architektoniczny
Alpejski
Lake
Górski
Cechy zewnętrzne
Zadaszona weranda z przodu
Taras
Okno narożne
Okna panoramiczne
Duże okna
Okna od podłogi do sufitu
Cechy wewnętrzne
Pralnia na parterze
Kominek w salonie
Główna sypialnia na piętrze
Skupione sypialnie
Pustka nad salonem
Zamknięta kuchnia
Duży salon (>25 m²)
Duża kuchnia (>12 m²)
Kuchnia i jadalnia
Spiżarnia
Kącik jadalniany
Wyspa kuchenna
Garaż
9: 49 m²
Samochody: 2
W bryle
Wiata
Wjazd od frontu
Dach
Powierzchnia dachu: 0.00m²
Wielospadowy
Architekt
Stanislav Garder Stanislav Garder Architekt
Kazakhstan
Kazakhstan
Almaty, Almaty
Pakiet projektu

Projekt domu może nie być zgodny z normami budowlanymi obowiązującymi w Twoim kraju.

Aby upewnić się, że projekt domu jest zgodny z normami budowlanymi obowiązującymi w Twoim kraju, należy zakupić koncepcję cyfrową od autora projektu i wybrać poniżej lokalnego architekta do przygotowania dokumentacji budowlanej.

Koncepcja cyfrowa plan_plan_cad_owner_country_desc
zł1449.34
Suma częściowa