Dokumentacja budowlana jest przygotowywana dla następujących krajów:

Projekt domu jednorodzinnego o pow. 157 m²: Piętrowy, 3 Sypialnie, 2 Łazienki, Otwarta kuchnia, Garaż

Projekt
64824R
Gotowe
Podpisane i opieczętowane
KC Dostępny
Kluczowe parametry
157
Pow. użytkowa m²
2 + 0
Łazienki + WC
3 + 0
Sypialnie + Gabinet
1
Samochody
111

222

Chcesz wprowadzić zmiany?

Ten projekt domu można dostosować do stylu życia Twojej rodziny i warunków Twojej działki.

Architekt tego projektu nie pochodzi z twojego kraju.

Jeśli chcesz zmodyfikować ten projekt domu, masz dwie opcje:

1. Modyfikacje przez oryginalnego architekta: Współpracuj bezpośrednio z oryginalnym architektem, aby kupić zmodyfikowaną koncepcję cyfrową, a następnie przekaż ją swojemu lokalnemu architektowi, aby zamówić dokumentację budowlaną.

2. Modyfikacje przez lokalnego architekta: Kup koncepcję cyfrową w oryginalnej formie, współpracuj z lokalnym architektem nad zmianami, a następnie przejdź do zamówienia dokumentacji budowlanej.

Rzuty
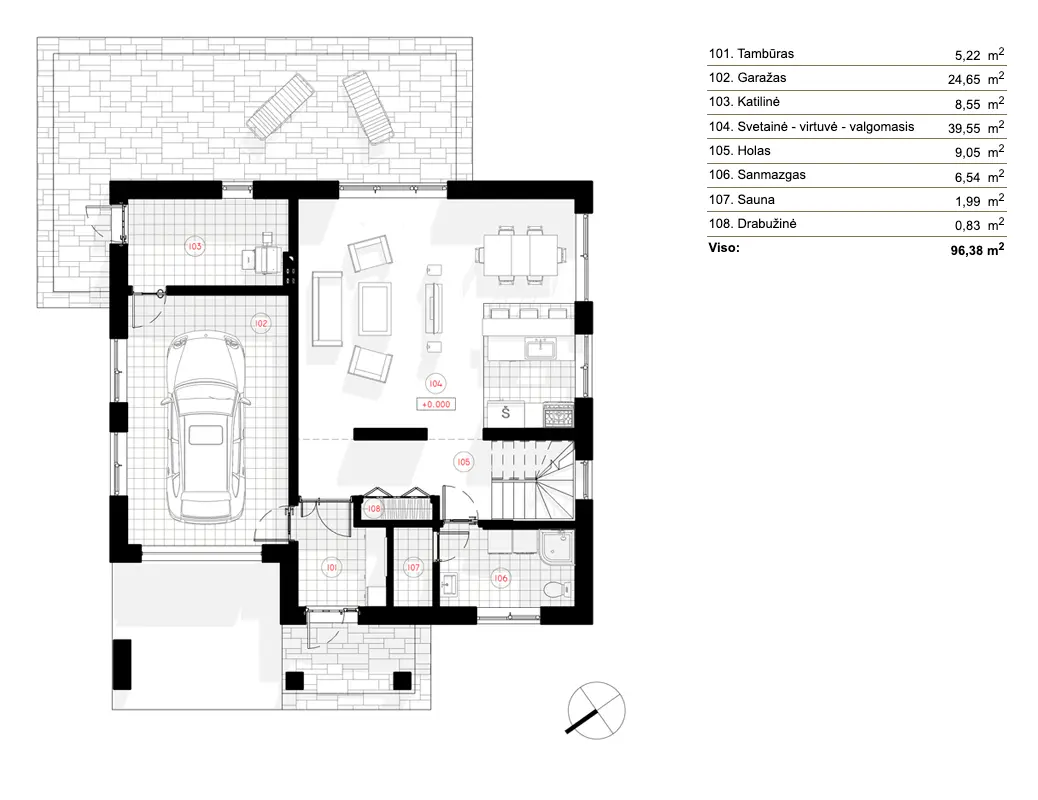
Parter
64824R - Parter
1. piętro
64824R - 1. piętro
Pełna specyfikacja
Powierzchnia
Pow. zabudowy: 123 m²
Pow. netto domu: 124 m²
Piwnica: 0 m²
Kotłownia: 9 m²
Pow. użytkowa: 157 m²
Wymiary
Głębokość 12.49 m
Szerokość 11.85 m
Wysokość 7.34 m
Materiały
Szkieletowy
Pustak ceramiczny
Beton komórkowy
Bloczek silikatowy
Elewacje
Płytki klinkierowe
Drewno
Tynk
Pomieszczenia
Łazienki : 2
Wc : 0
Sypialnie : 3
Kotłownia
Pralnia
Wiatrołap
Sauna
Garderoba w sypialni
Fundament
Pale
Płyta
Z bloczków
Ławy
Styl architektoniczny
European
Tradycyjny
Cechy zewnętrzne
Taras
Okno narożne
Cechy wewnętrzne
Pralnia na parterze
Główna sypialnia na piętrze
Skupione sypialnie
Otwarta kuchnia
Duży salon (>25 m²)
Kuchnia i jadalnia
Lada barowa
Kącik jadalniany
Wyspa kuchenna
Garaż
9: 25 m²
Samochody: 1
Doklejony
Wjazd od frontu
Dach
Powierzchnia dachu: 0.00m²
Jednospadowy
Kąt dachu : 9.5º (±2º)
Architekt
NPS projektai NPS projektai Biuro architektoniczne country with code lt Lithuania
country with code lt Lithuania
Šiauliai City Municipality, Šiauliai, Tilžės g. 151 (II aukštas)
Pakiet projektu

Projekt domu może nie być zgodny z normami budowlanymi obowiązującymi w Twoim kraju.

Aby upewnić się, że projekt domu jest zgodny z normami budowlanymi obowiązującymi w Twoim kraju, należy zakupić koncepcję cyfrową od autora projektu i wybrać poniżej lokalnego architekta do przygotowania dokumentacji budowlanej.

Koncepcja cyfrowa plan_plan_cad_owner_country_desc
4579 zł
Suma częściowa
Lokalni architekci
Oferty lokalnych architektów gotowych do opracowania dokumentacji budowlanej na podstawie koncepcji cyfrowej.
 

 

 

Polska, Województwo Mazowieckie, Warsaw
7500
Polska, Województwo Dolnośląskie, Wrocław
31374
Polska, Województwo Małopolskie, Kraków
28236.6
Polska, Łódź Voivodeship, Łódź
43923.6