Dokumentacja budowlana jest przygotowywana dla następujących krajów:

Projekt domu jednorodzinnego o pow. 138 m²: Parterowy, 3 Sypialnie, 1 Łazienki, Otwarta kuchnia, Garaż

Projekt
79379R
Gotowe
Podpisane i opieczętowane
KC Dostępny
Kluczowe parametry
138
Pow. użytkowa m²
1 + 0
Łazienki + WC
3 + 0
Sypialnie + Gabinet
1
Samochody
111

222

Chcesz wprowadzić zmiany?

Ten projekt domu można dostosować do stylu życia Twojej rodziny i warunków Twojej działki.

Architekt tego projektu nie pochodzi z twojego kraju.

Jeśli chcesz zmodyfikować ten projekt domu, masz dwie opcje:

1. Modyfikacje przez oryginalnego architekta: Współpracuj bezpośrednio z oryginalnym architektem, aby kupić zmodyfikowaną koncepcję cyfrową, a następnie przekaż ją swojemu lokalnemu architektowi, aby zamówić dokumentację budowlaną.

2. Modyfikacje przez lokalnego architekta: Kup koncepcję cyfrową w oryginalnej formie, współpracuj z lokalnym architektem nad zmianami, a następnie przejdź do zamówienia dokumentacji budowlanej.

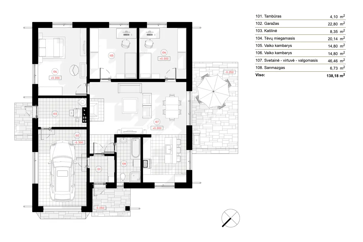
Rzuty
Parter
79379R - Parter
Pełna specyfikacja
Powierzchnia
Pow. zabudowy: 167 m²
Pow. netto domu: 107 m²
Piwnica: 0 m²
Kotłownia: 8 m²
Pow. użytkowa: 138 m²
Wymiary
Głębokość 14.70 m
Szerokość 12.36 m
Wysokość 5.14 m
Materiały
Szkieletowy
Pustak ceramiczny
Beton komórkowy
Bloczek silikatowy
Elewacje
Płytki klinkierowe
Pomieszczenia
Łazienki : 1
Wc : 0
Sypialnie : 3
Kotłownia
Wiatrołap
Fundament
Pale
Płyta
Z bloczków
Ławy
Styl architektoniczny
Bungalow
European
Tradycyjny
Cechy zewnętrzne
Taras
Cechy wewnętrzne
Kominek w salonie
Główna sypialnia na parterze
Otwarta kuchnia
Duży salon (>25 m²)
Duża kuchnia (>12 m²)
Kuchnia i jadalnia
Kącik jadalniany
Wyspa kuchenna
Garaż
9: 23 m²
Samochody: 1
Wjazd od frontu
Wysunięty
Dach
Powierzchnia dachu: 0.00m²
Dwuspadowy
Kalenica prostopadła do ulicy
Kąt dachu : 14º (±2º)
Architekt
NPS projektai NPS projektai Biuro architektoniczne country with code lt Lithuania
country with code lt Lithuania
Šiauliai City Municipality, Šiauliai, Tilžės g. 151 (II aukštas)
Pakiet projektu

Projekt domu może nie być zgodny z normami budowlanymi obowiązującymi w Twoim kraju.

Aby upewnić się, że projekt domu jest zgodny z normami budowlanymi obowiązującymi w Twoim kraju, należy zakupić koncepcję cyfrową od autora projektu i wybrać poniżej lokalnego architekta do przygotowania dokumentacji budowlanej.

Koncepcja cyfrowa plan_plan_cad_owner_country_desc
4562 zł
Suma częściowa
Lokalni architekci
Oferty lokalnych architektów gotowych do opracowania dokumentacji budowlanej na podstawie koncepcji cyfrowej.
 

 

 

Polska, Województwo Mazowieckie, Warsaw
7000
Polska, Województwo Dolnośląskie, Wrocław
27636
Polska, Województwo Małopolskie, Kraków
24872.4
Polska, Łódź Voivodeship, Łódź
38690.4