Dokumentacja budowlana jest przygotowywana dla następujących krajów:

Projekt domu jednorodzinnego o pow. 216 m²: Piętrowy, 3 Sypialnie, Gabinet, 2 Łazienki, Garaż

Projekt
96016R
Gotowe
Podpisane i opieczętowane
KC Dostępny
Kluczowe parametry
216
Pow. użytkowa m²
2 + 0
Łazienki + WC
3 + 1
Sypialnie + Gabinet
2
Samochody
111

222

Chcesz wprowadzić zmiany?

Ten projekt domu można dostosować do stylu życia Twojej rodziny i warunków Twojej działki.

Architekt tego projektu nie pochodzi z twojego kraju.

Jeśli chcesz zmodyfikować ten projekt domu, masz dwie opcje:

1. Modyfikacje przez oryginalnego architekta: Współpracuj bezpośrednio z oryginalnym architektem, aby kupić zmodyfikowaną koncepcję cyfrową, a następnie przekaż ją swojemu lokalnemu architektowi, aby zamówić dokumentację budowlaną.

2. Modyfikacje przez lokalnego architekta: Kup koncepcję cyfrową w oryginalnej formie, współpracuj z lokalnym architektem nad zmianami, a następnie przejdź do zamówienia dokumentacji budowlanej.

Rzuty
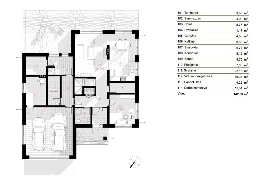
Parter
96016R - Parter
1. piętro
96016R - 1. piętro
Pełna specyfikacja
Powierzchnia
Pow. zabudowy: 181 m²
Pow. netto domu: 172 m²
Piwnica: 0 m²
Kotłownia: 9 m²
Pow. użytkowa: 216 m²
Wymiary
Głębokość 15.92 m
Szerokość 14.32 m
Wysokość 7.82 m
Materiały
Szkieletowy
Pustak ceramiczny
Beton komórkowy
Bloczek silikatowy
Elewacje
Płytki klinkierowe
Tynk
Pomieszczenia
Łazienki : 2
Wc : 0
Sypialnie : 3
Kotłownia
Pralnia
Wiatrołap
Gabinet
Sauna
Schowek
Garderoba w sypialni
Fundament
Pale
Płyta
Z bloczków
Ławy
Styl architektoniczny
European
Tradycyjny
Cechy zewnętrzne
Taras
Cechy wewnętrzne
Pralnia na parterze
Kominek w salonie
Główna sypialnia na piętrze
Skupione sypialnie
Zamknięta kuchnia
Duża kuchnia (>12 m²)
Kuchnia i jadalnia
Spiżarnia
Kącik jadalniany
Garaż
9: 35 m²
Samochody: 2
Doklejony
Wjazd od frontu
Wysunięty
Dach
Powierzchnia dachu: 0.00m²
Jednospadowy
Dwuspadowy jednoboczny
Kalenica prostopadła do ulicy
Kąt dachu : 14º (±2º)
Architekt
NPS projektai NPS projektai Biuro architektoniczne country with code lt Lithuania
country with code lt Lithuania
Šiauliai City Municipality, Šiauliai, Tilžės g. 151 (II aukštas)
Pakiet projektu

Projekt domu może nie być zgodny z normami budowlanymi obowiązującymi w Twoim kraju.

Aby upewnić się, że projekt domu jest zgodny z normami budowlanymi obowiązującymi w Twoim kraju, należy zakupić koncepcję cyfrową od autora projektu i wybrać poniżej lokalnego architekta do przygotowania dokumentacji budowlanej.

Koncepcja cyfrowa plan_plan_cad_owner_country_desc
4562 zł
Suma częściowa
Lokalni architekci
Oferty lokalnych architektów gotowych do opracowania dokumentacji budowlanej na podstawie koncepcji cyfrowej.
 

 

 

Polska, Województwo Mazowieckie, Warsaw
8000
Polska, Województwo Dolnośląskie, Wrocław
43176
Polska, Województwo Małopolskie, Kraków
38858.4
Polska, Łódź Voivodeship, Łódź
60446.4